hot key words
contact us
湖北星达辉建设有限公司
联系人:陈经理
加固公司热线:13476508899
邮箱:419076069@qq.com
联系地址:武汉市东西湖区辛安渡办事处徐家台1号(15)
孝感办事处:孝感市孝南区长征南路
随着城市建设的不断发展,建筑老龄化的不断加重,各种建筑正面临着日益复杂的挑战。近年来,各类房屋不断暴露出新的病害,为确保结构安全,延长结构寿命,并保证经济效益,采用结构加固代替拆除重建已成为主要的发展趋势。结构加固中同样存在较多的分类,分清加固类型,采用正确的加固方式,是加固有效的重要保障。
结构加固类型

对于房屋结构加固工程,可分为房屋结构整体抗震加固(即体系加固)和构件加固。体系加固是针对房屋结构整体抗震性能不足以现行抗震鉴定标准为依据进行的加固;构件加固是针对局部构件承载力不足而进行的局部构件的加固,在局部构件加固中,需要综合考虑是否会对整体结构造成影响,防止因局部增强影响其他构件安全。
砌体结构加固方法
对可靠性不足或业主要求提高可靠度的砌体结构及其相关部分,可采取增强、局部更换或调整其内力等措施,使其具有现行设计规范及业主要求的安全性、耐久性和适用性。砌体结构抗震承载力不满足时,可采用的加固方法包含:拆砌或增设抗震墙、修补和灌浆、面层或板墙加固、外加柱加固、包角或镶边加固、支撑或支架加固。

当砌体结构整体性不满足时,宜结合具体情况,采用如下加固方法:
1)当墙体布置在平面内不闭合时,可增设墙段或在开口处增设现浇钢筋混凝土框形成闭合。
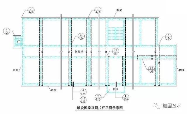
2)当纵横强连接较差时,可采用钢拉杆、长锚杆、外加柱和外加圈梁等加固。

3)楼、屋盖构件支撑长度不满足要求时,可增设托梁或采取增强楼、屋盖整体性等的措施;对腐蚀变质的构件应更换;对无下弦的人字屋架应增设下弦拉杆。
4)当构造柱或芯柱设置不符合鉴定要求时,应增设外加柱;当墙体采用双面钢筋网砂浆面层或钢筋混凝土板墙加固,且在墙体交接处增设互相可靠拉结的配筋加强带时,可不另设构造柱。
5)当圈梁设置不符合鉴定要求时,应增设圈梁;外墙圈梁宜采用现浇钢筋混凝土,内墙圈梁可用钢拉杆或在进深端加锚杆代替;当采用双面钢筋网砂浆面层或钢筋混凝土板墙加固,且在上下两端增设配筋加强带时,可不另设圈梁。
6)当预制楼、屋不满足抗震鉴定要求时,可增设钢筋混凝土现浇层或增设托梁加固楼、屋盖。
对砌体结构薄弱易倒部位,宜采用以下加固方法:
1)窗间墙宽度过小或抗震能力不满足要求时,可增设钢筋混凝土窗框或采用钢筋网砂浆面层、板墙等方法加固。
2)支撑大梁等的墙段抗震能力不满足要求时,可增设砌体柱、组合柱、钢筋混凝土柱或采用钢筋网砂浆面层、板墙等方法加固。

3)支撑悬挑构件的墙体不符合鉴定要求时,宜在悬挑构件端部增设钢筋混凝土柱或砌体组合柱加固。
4)隔墙无拉结或拉结不牢,可采用镶边、埋设钢夹套、锚筋或钢拉杆加固;当隔墙过长,过高时,可采用钢筋网砂浆面层进行加固。
5)出屋面的楼梯间、电梯间和水箱间不符合鉴定要求时,可采用面层或外加柱加固,其上部应与屋盖构件有可靠连接,下部应与主体结构的加固措施相连。
6)出屋面的烟囱、无拉结女儿墙、门脸等超过规定的高度时,宜拆除、降低高度或采用型钢、钢拉杆加固。
7)悬挑构件的锚固长度不满足要求时,可加拉杆或采取减少悬挑长度的措施。
钢筋混凝土结构加固方法
钢筋混凝土房屋结构体系和抗震承载力不满足要求时,宜采用以下加固方法:
1)单向框架应加固,或改为双向框架,或采取加强楼、屋盖整体性且同时增设抗震墙、抗震支撑等抗侧力构件的措施。
2)单跨框架不符合鉴定要求时,应在大于框架-抗震墙结构的抗震墙最大间距且不大于24m的间距内增设抗震墙、翼墙、抗震支撑等抗侧力构件或将对应轴线的单跨框架改为多跨框架。
3)框架梁柱配筋或承载力不符合鉴定要求时,可采用外包型钢、增大截面法、粘钢板或粘碳布等加固方法进行加固。

4)框架柱轴压比不符合鉴定要求时,可采用增大截面法进行加固。
5)房屋刚度较弱、明显不均匀或有明显的扭转效应时,可赠送钢筋混凝土抗震墙或翼墙加固,也可设置支撑加固。
6)钢筋混凝土抗震墙配筋不符合鉴定要求时,可加厚原有墙体或增设端柱、墙体等。
7)楼梯构件不符合鉴定要求时,可采用粘贴钢板、碳布或增大截面法进行加固。
选用正确的加固方法,是结构安全的必要保障。而另一方面,大量加固工程后期出现安全、质量问题,都是源于采用了不合格加固材料所造成,因此,在注重方法选择的基础上,还需关注包括加固材料在内的所有环节,防止留下安全隐患。
鄂ICP备17023221号 技术支持:武汉网站建设与推广